股票如何申请杠杆退市-小米股票今日行情-【东方资本】,普通人炒股怎么加杠杆,选股票怎么选,网上配资官网中航资本.如何注册

分羅經

分羅經支架

分羅經支架

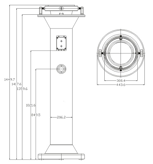
分羅經支架是我參照國外C_PLAS最新款式所設計制造的一種支架。分羅經支架有立式和側掛式兩款,配置不同的安裝附件以適合不同廠家不同型號的分羅經使用,如美國SPERRY、歐洲SIMRAD、德國安修斯、日本TKC、及國內所有廠家的分羅經。支架選用鋁合金結構、采用先進的烤漆工藝制成、外形美觀大方、牢固耐用、價格合理,是取代進口分羅經支架的新產品。


適合不同廠家不同型號的分羅經使用


熱門推薦

暫無記錄
?